Подольск
Сдам
Сниму
Продам
Куплю
         Площадь:
от:

до:
кв.м.
         Стоимость:
от:

до:
руб.
Показать

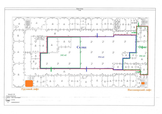
Склад Пандус 554м2 включая отопл

Стоимость аренды 554000 руб./месяц
Арт. 114306971 БЕЗ КОМИССИИ! ПРЯМОЙ ПРЕДСТАВИТЕЛЬ СОБСТВЕННИКА!Предлагаются в аренду помещения свободного назначения, находящиеся на 3 этаже отдельно стоящего здания Производственно-складского комплекса, расположенные по адресу: г. Подольск, ул. Железнодорожная, д. 20с1
ОСНОВНЫЕ ХАРАКТЕРИСТИКИ:Площадь: 554 кв. м. , возможно дополнительное увеличение площади на 342 кв. м., есть офисные помещения
Мощность (кВт.): 300 кВт, возможно увеличение
Описание: Помещения на 3 этаже здания с 2 отдельными входами (1 пассажирский лифт) и грузовым лифтом (г/п 3,2 т). Территория охраняемая, доступ круглосуточный, заезд и парковка бесплатные.
Отделка: с ремонтом, пол - плитка; нагрузка на пол 900 кг/м2; потолки - 4,2 м,
Мокрая точка: есть, 2 шт.
Парковка: есть, перед зданием
Зона разгрузки: есть, пандус, грузовой лифт (г/п 3,2 т.; длина 3.4м; ширина 2.4м; высота 2.2м)


КЛЮЧЕВЫЕ ПРЕИМУЩЕСТВА:Удобная транспортная доступность, в непосредственной близости находится станция МЦД (D2) Подольск до 10 мин пешком (800 м). Удобный подъезд к зданию и собственная парковка.
Помещения занимают часть этажа в отдельно стоящем Производственно-складском здании. Имеются как офисные комнаты, так и производственно-складские помещения, своя мокрая точка.
Для доступа на этаж есть 2 лестницы, пассажирский и грузовой лифты. Для погрузки оборудован закрытый пандус и ворота к грузовому лифту
Возможно оформление юрадреса
Помещения оборудованы центральными коммуникациями и выделена электрическая мощность.
Ставка арендной платы составляет 1000 руб./м2 (без НДС 20%) и включает отопление. Отдельно по счетчикам оплачиваются электроэнергия и водоснабжение.Предоставляются каникулы на заезд. Быстрый показ!Дополнительную информацию готовы предоставить по телефону.
#8879823#


Общая стоимость: 554000 руб./месяц
Этаж/этажность: 3/4
Агентам: Не звонить


г. Подольск
6 минут пешком

, Подольская ул

Голубев Александр т. +7(926)777-78-68



Расскажи об этом объявлении:

 facebookFacebook    twitterTwitter    в контактеВ Контакте  
2177227
24 Сентября 2025
просмотров 12





  • test
  • test
  • test
  • test
  • test
  • test
  • test
  • test
  • test
  • test
  • test
  • test
  • test
  • test
  • test
  • test
  • test
  • test
  • test
  • test
  • test
  • test
  • test

Добавить комментарий



Похожие объявления





Отправка сообщения хозяину объявления: №
Пожаловаться на объявление: №